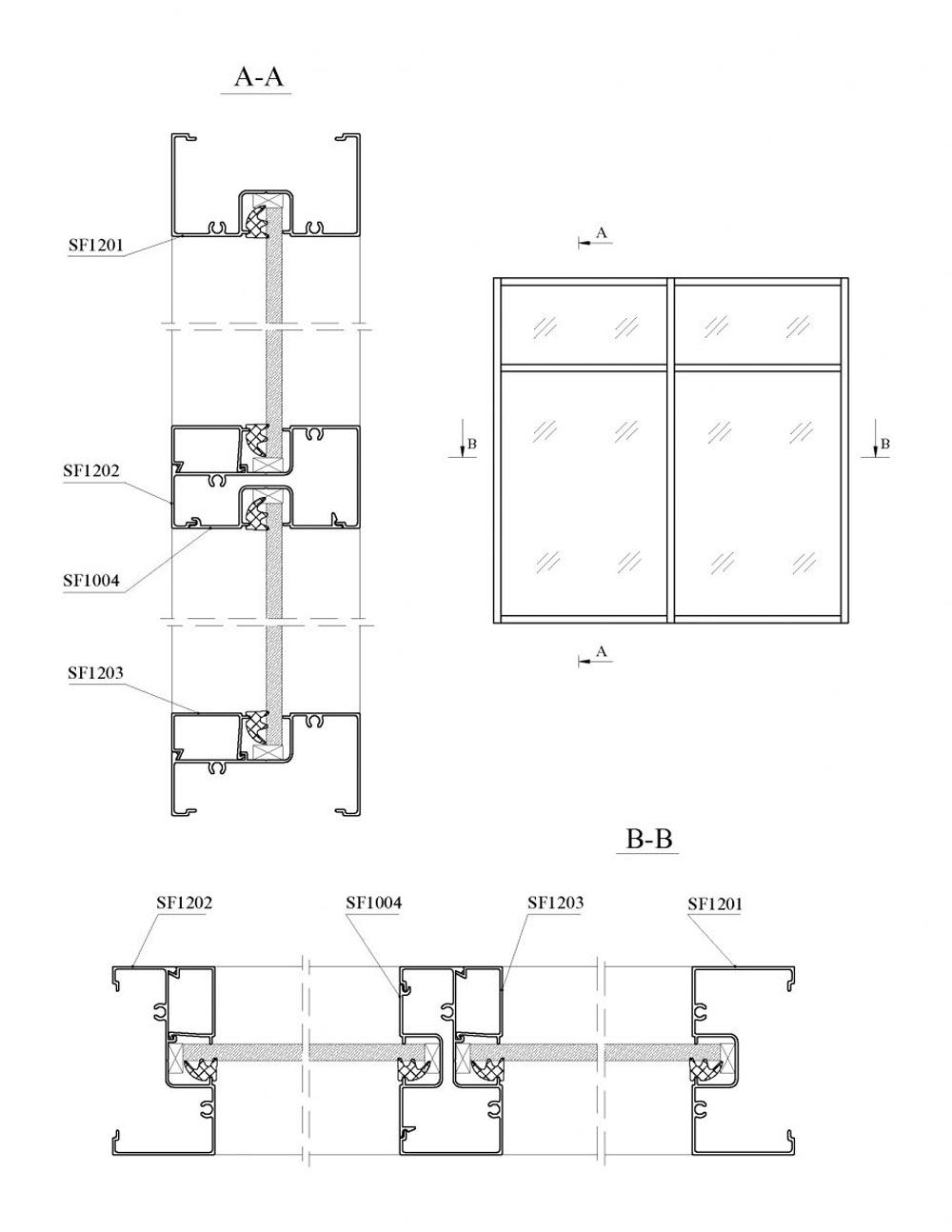
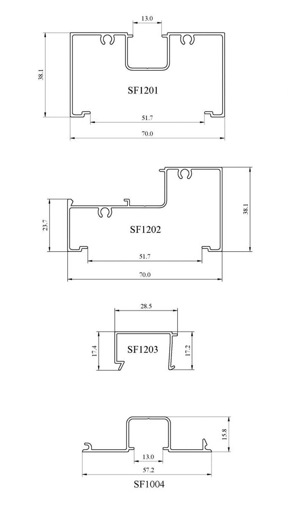
Vách ngăn SF70