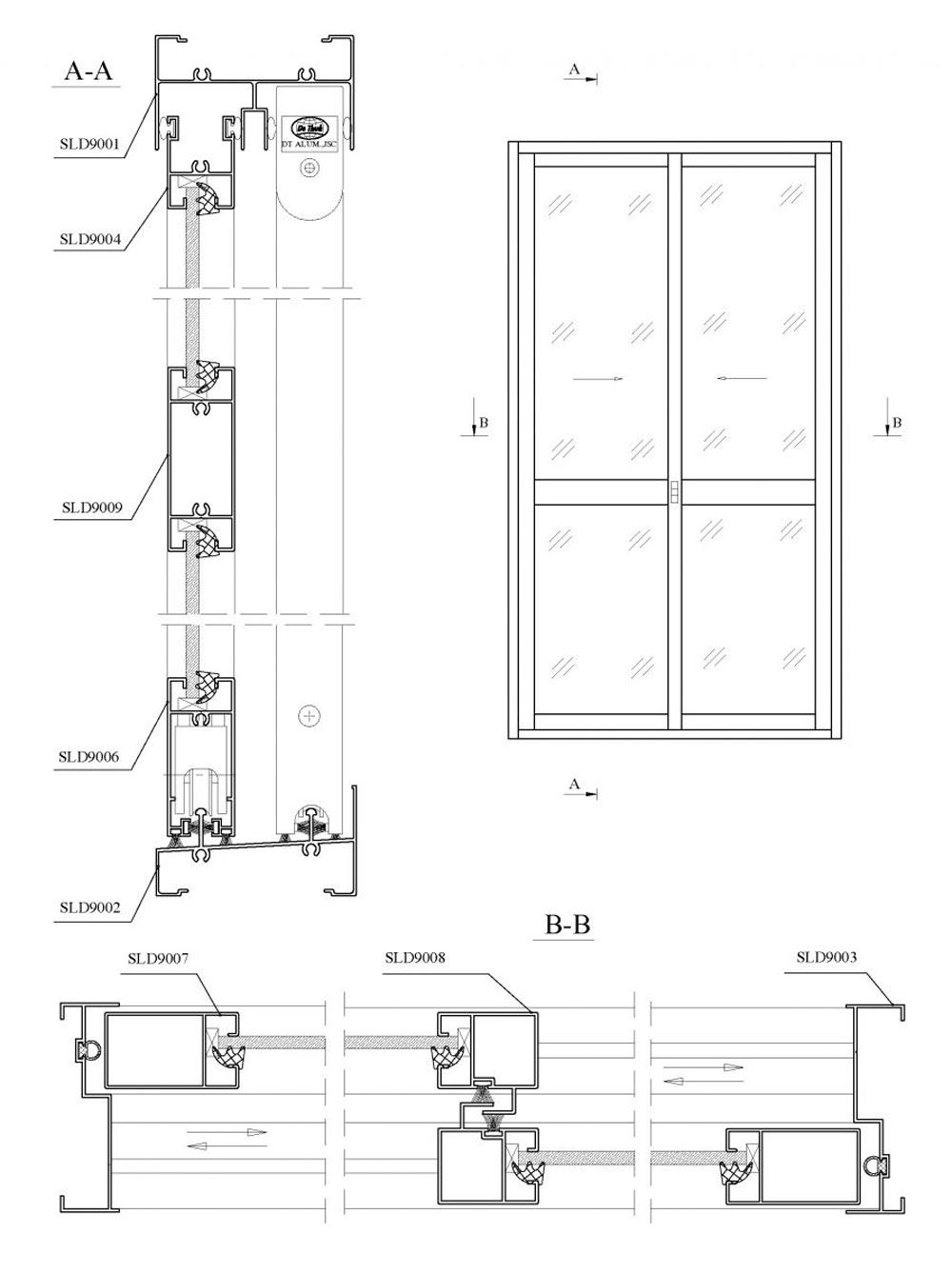
Cửa lùa SLD76