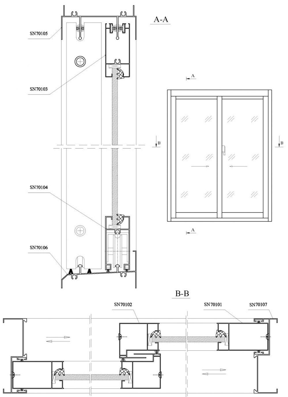
Cửa lùa 70A