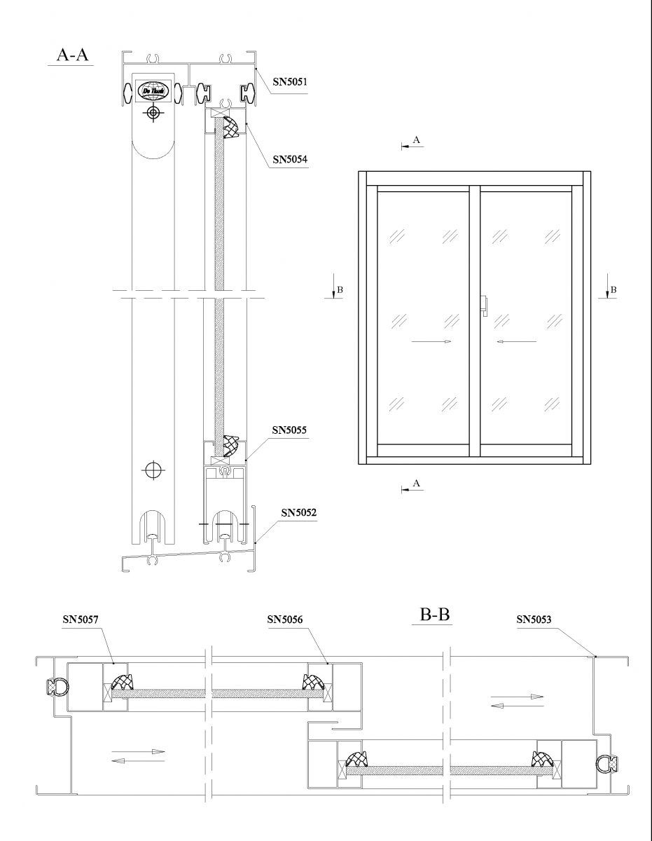
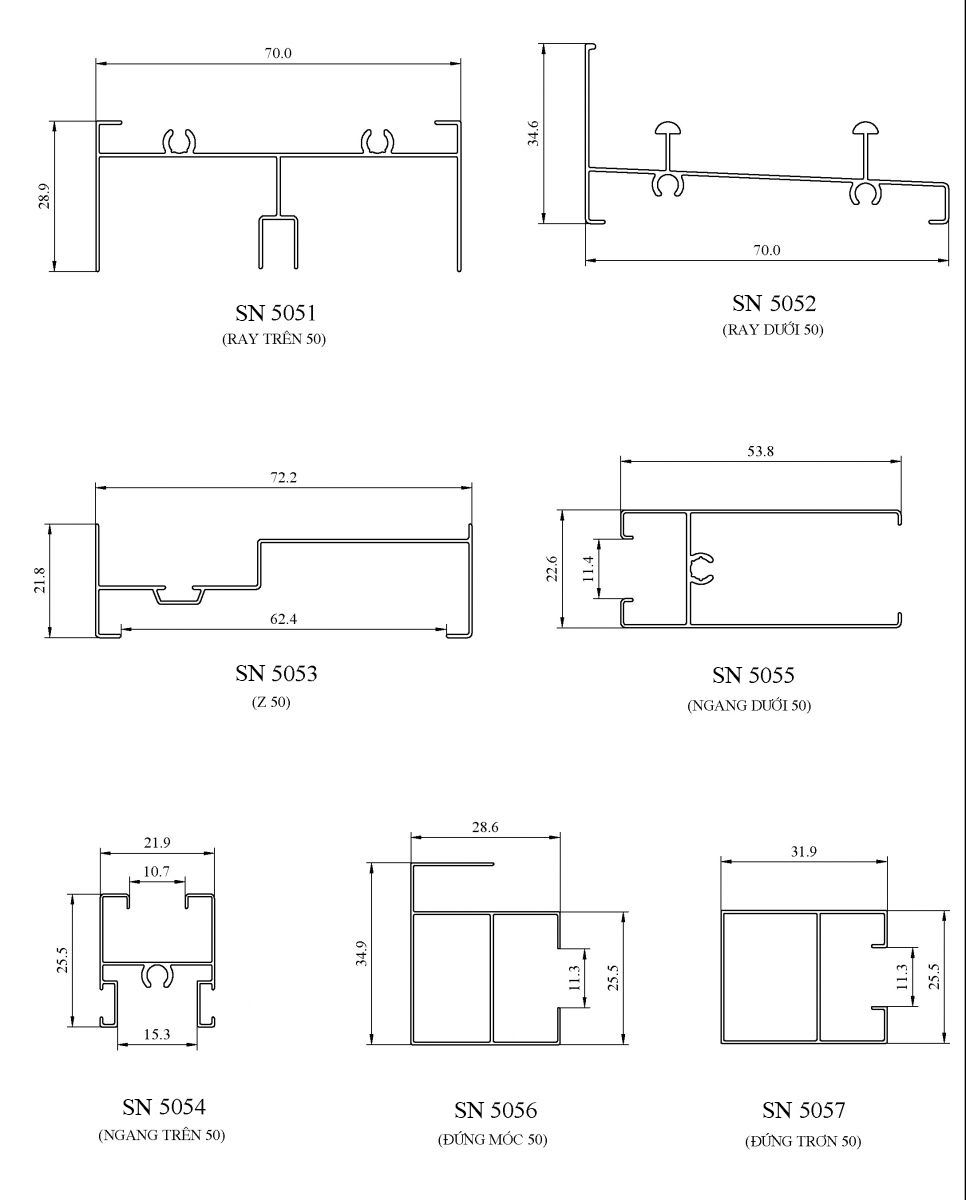
Cửa lùa 50