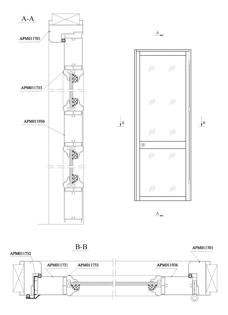
Cửa đi APM