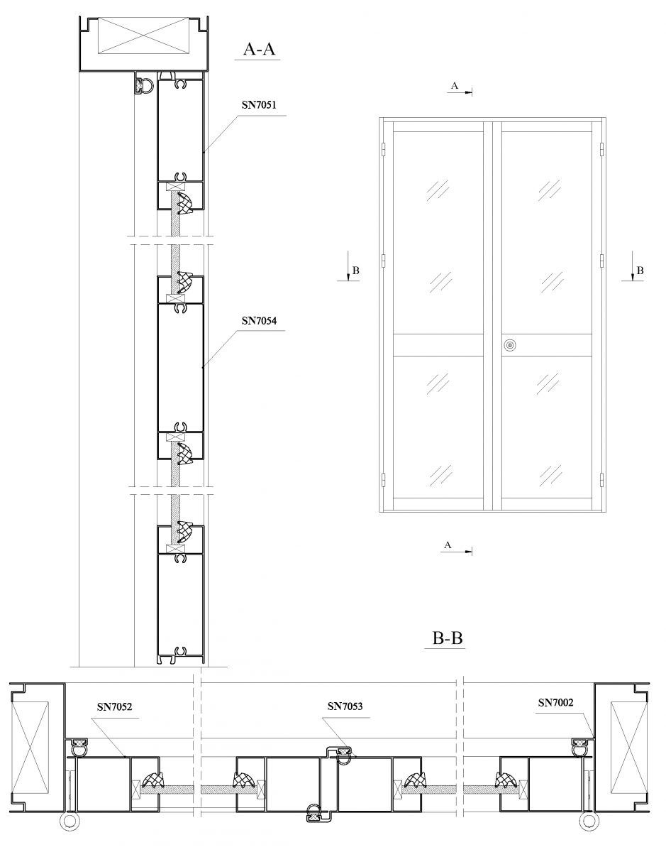
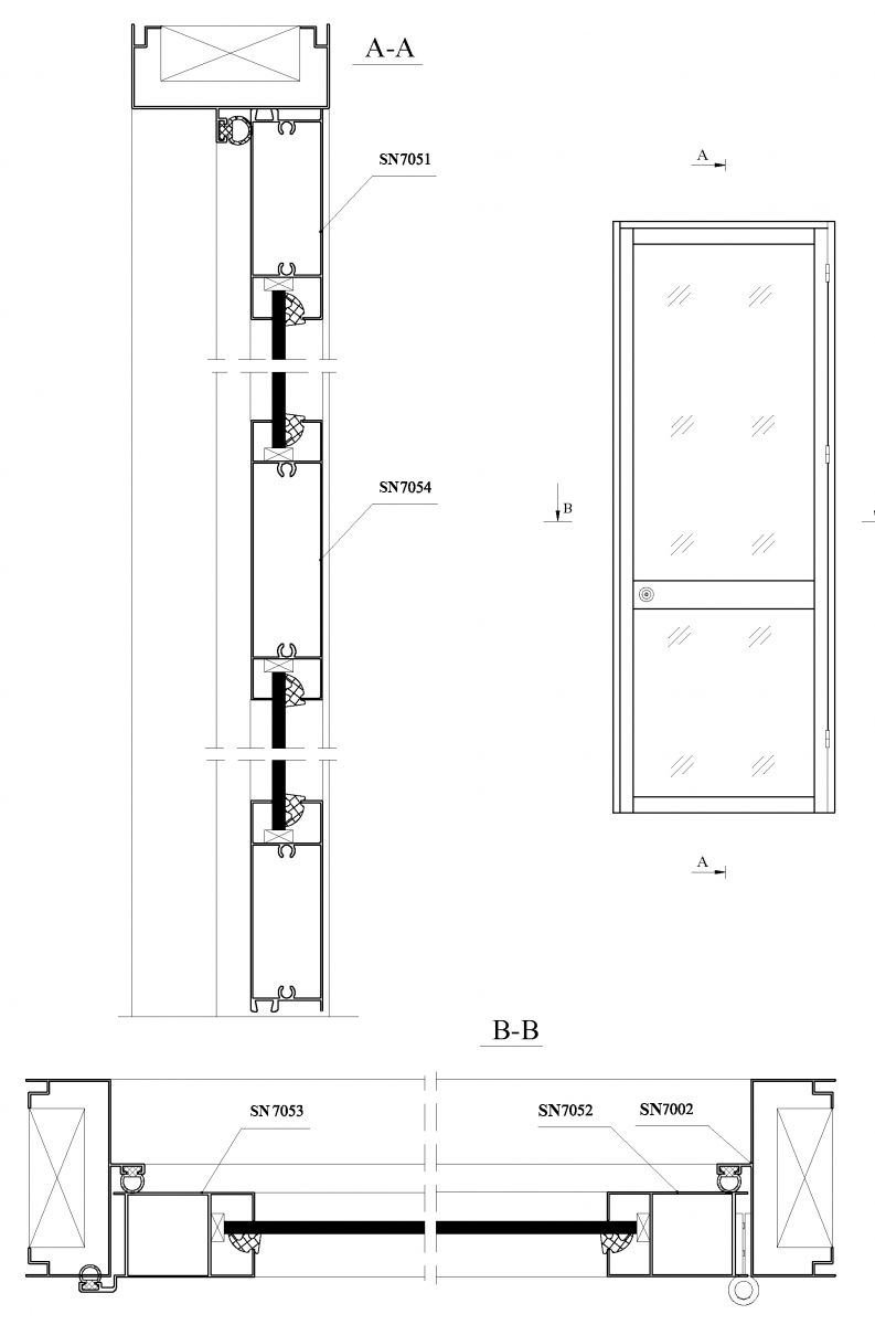
Cửa đi AM